首页
关于奥铝
简介
发展历程
公司愿景
集团荣誉
企业形象展示片
产业布局
新闻动态
产品展示
铝单板系列
吊顶天花系列
门窗系列
幕墙系列
工业铝材系列
工程案例
客户留言
联系我们
产品展示
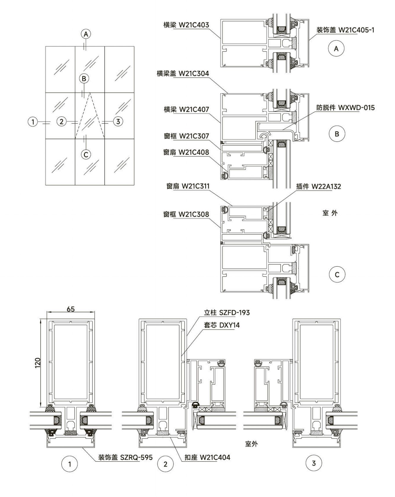
ALA65-120明框玻璃幕墙
明框玻璃幕墙采用外露金属框架结构,通过6063-T6铝合金型材承托玻璃单元,实现高强度荷载分布,抗风压9级。其开放式框架形成秩序美学线条,配合EPDM胶条压紧系统确保水密性6级与气密性8级;热阻断设计(PA66GF25隔热条)将传热系数控制在K≤2.0 W/(m²·K),玻璃槽口预留3-5mm伸缩缝应对建筑位移。支持快速模块化安装,兼具维护便捷性,单块玻璃可拆换,成为商业综合体、交通枢纽等大型公共建筑的理想幕墙选择。
全国热线
18169883265
在线咨询
上一个:没有了
下一个:ALC80-136.5明框玻璃幕墙
结构图
产品效果图
为您推荐
留缝组合铝单板
墙面无缝铝单板
异形勾搭铝单板
冲孔铝单板
铝网板
金属艺术镂空板
氟碳铝单板
长城铝板
18169883265