首页
关于奥铝
简介
发展历程
公司愿景
集团荣誉
企业形象展示片
产业布局
新闻动态
产品展示
铝单板系列
吊顶天花系列
门窗系列
幕墙系列
工业铝材系列
工程案例
客户留言
联系我们
产品展示
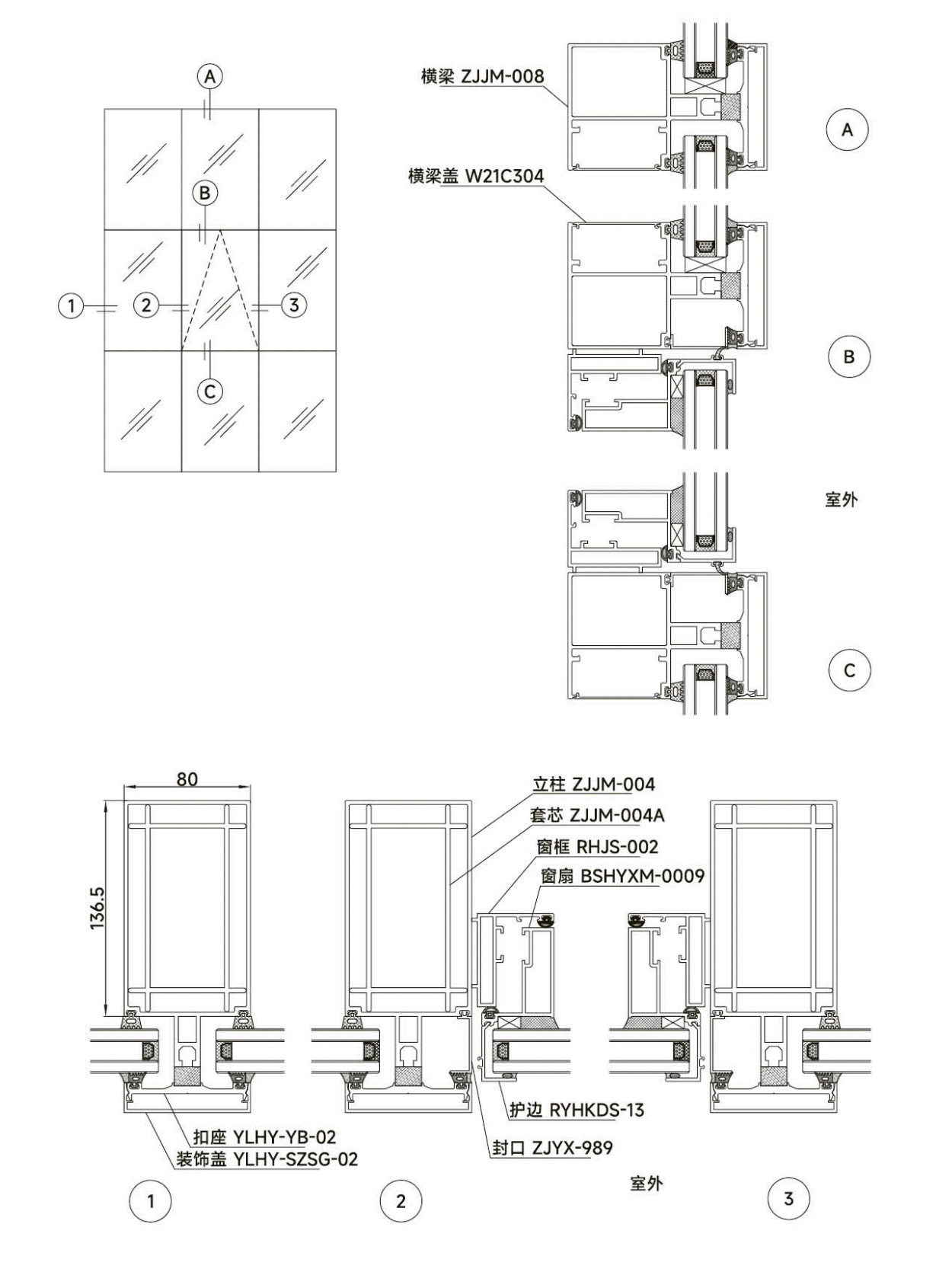
ALC80-136.5明框玻璃幕墙
隐框玻璃幕墙采用全粘接承重结构,通过高强度硅酮结构胶(粘结强度≥0.7MPa)将玻璃单元直接固定于铝合金副框,实现外立面无金属框的纯粹玻璃视觉效果。其核心技术包括:三维可调挂接系统(应对建筑形变;等压腔密封设计达成水密性7级(≥1000Pa);复合隔热构造(PA66GF25隔热条+暖边间隔条)将传热系数降至K≤1.5 W/(m²·K)。适用于超高层建筑、科技展馆等追求极致通透与光影连续性的地标项目,以“无框美学”重构建筑表皮语言。
全国热线
18169883265
在线咨询
上一个:ALA65-120明框玻璃幕墙
下一个:没有了
结构图
产品效果图
为您推荐
留缝组合铝单板
墙面无缝铝单板
异形勾搭铝单板
冲孔铝单板
铝网板
金属艺术镂空板
氟碳铝单板
长城铝板
18169883265