安装说明&安装示意图
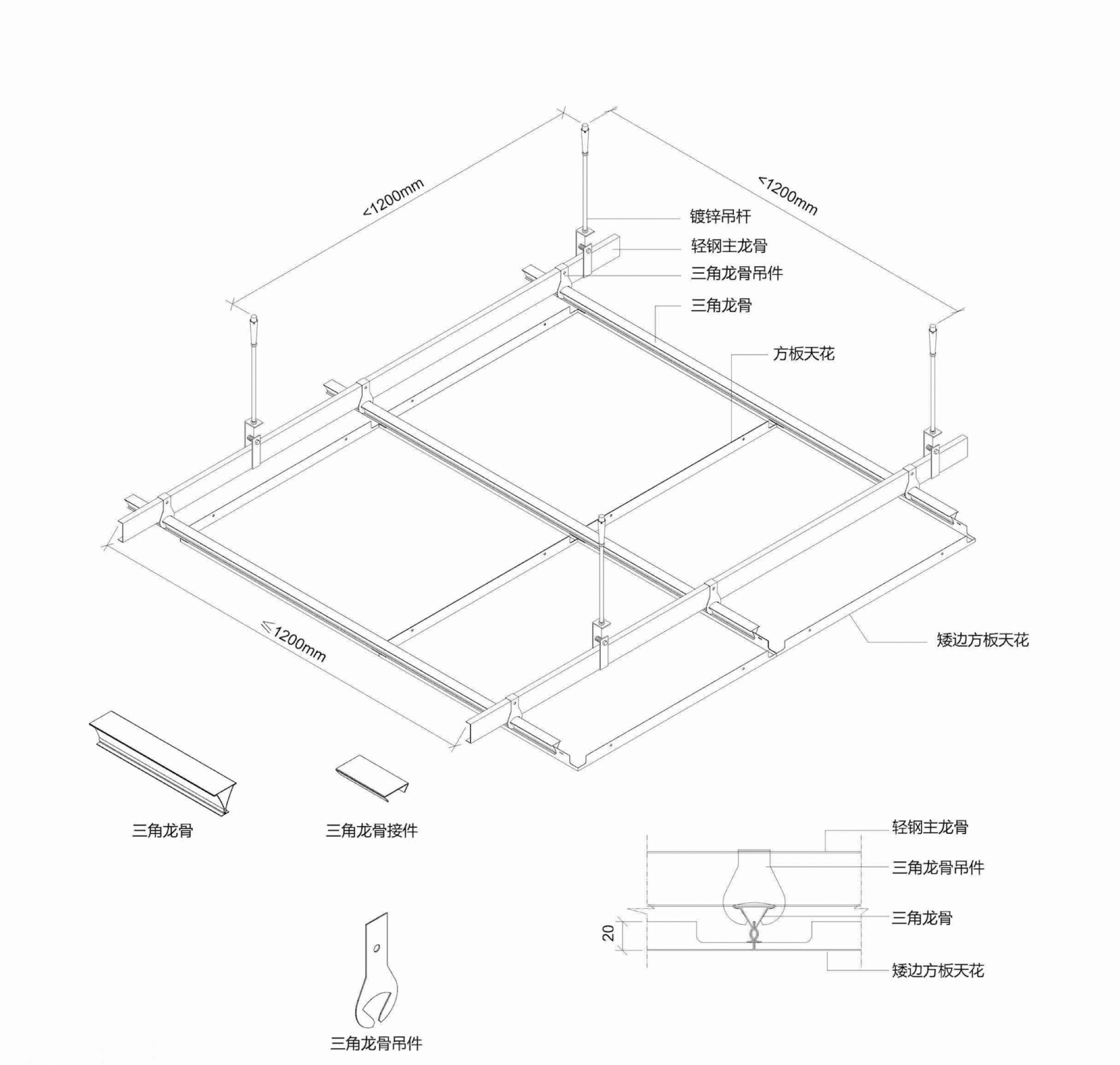
1.将按设计图纸要求测量方板天花安装后的标高,确定出天花水平线,在墙体周边水平线位置固定收边角;
2.确定施工方向,按≤1200mm距离在建筑结构天花上打好吊装孔,用膨胀螺栓固定吊杆;
3.固定轻钢龙骨吊件、轻钢龙骨,将轻钢龙骨调至水平同时调整好轻钢龙骨的标高,每条龙骨相互平行;
4.将三角龙骨套入三角龙骨吊件上,吊件固定在龙骨上,三角龙骨必须要彼此平行且垂直于轻钢龙骨;
5.安装方型扣板:将板冲了龙骨扣位的两边对准三角龙骨缝槽卡入龙骨内;
6.收边处应根据现场情况量取尺寸,将天花板搭在收边角上;
7.安装过程应保持手清洁,不能有汗水、油污等不结现象。

产品效果图

