型材方通
型材方通是采用先进的挤压成型工艺制造而成的装饰性建筑材料。在生产过程中,铝合金经过高温熔炼、精确挤压成型,形成具有高强度和直线度的方通型材。可以根据客户需求,进行多种表面处理工艺,如粉末喷涂、转印木纹、氟碳喷涂等,赋予产品丰富的色彩与质感。
全国热线
18169883265
在线咨询


规格参数


型材方通
规格(mm)厚度范围(mm)间距适用范围
25x80/25x100/ 30x100/50x500.7、0.8、0.9、1.0≥100可任意调节各类大型公共建筑通道,机场、展览厅、购物中心、车站、隧道走廊等。




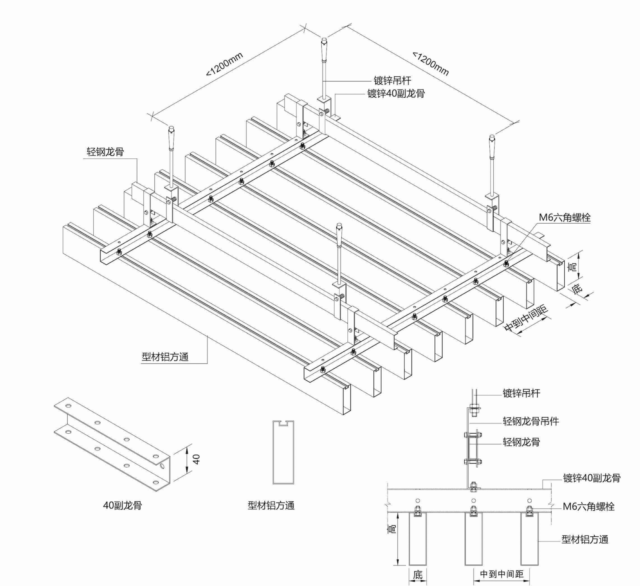
安装说明&安装示意图

1.按设计要求测出安装的标高;

2.确定施工方向,并按≤1200 mm距离在天花上打吊装孔,同时用膨胀螺栓固定镀锌吊杆;

3.固定好主龙骨,再用主龙骨吊件与40副龙骨连接好,间距按≤1200mm调好;

4.将M6六角螺栓卡入型材铝方通的卡槽中,然后将型材铝方通固定在40副龙骨,连接牢固即可;

5.注意:安装过程应保持手清洁,不能有汗水、油污等不结现象。



WechatIMG3338.jpeg


产品效果图

光影魔术手拼图.jpg