首页
关于奥铝
简介
发展历程
公司愿景
集团荣誉
企业形象展示片
产业布局
新闻动态
产品展示
铝单板系列
吊顶天花系列
门窗系列
幕墙系列
工业铝材系列
工程案例
客户留言
联系我们
产品展示
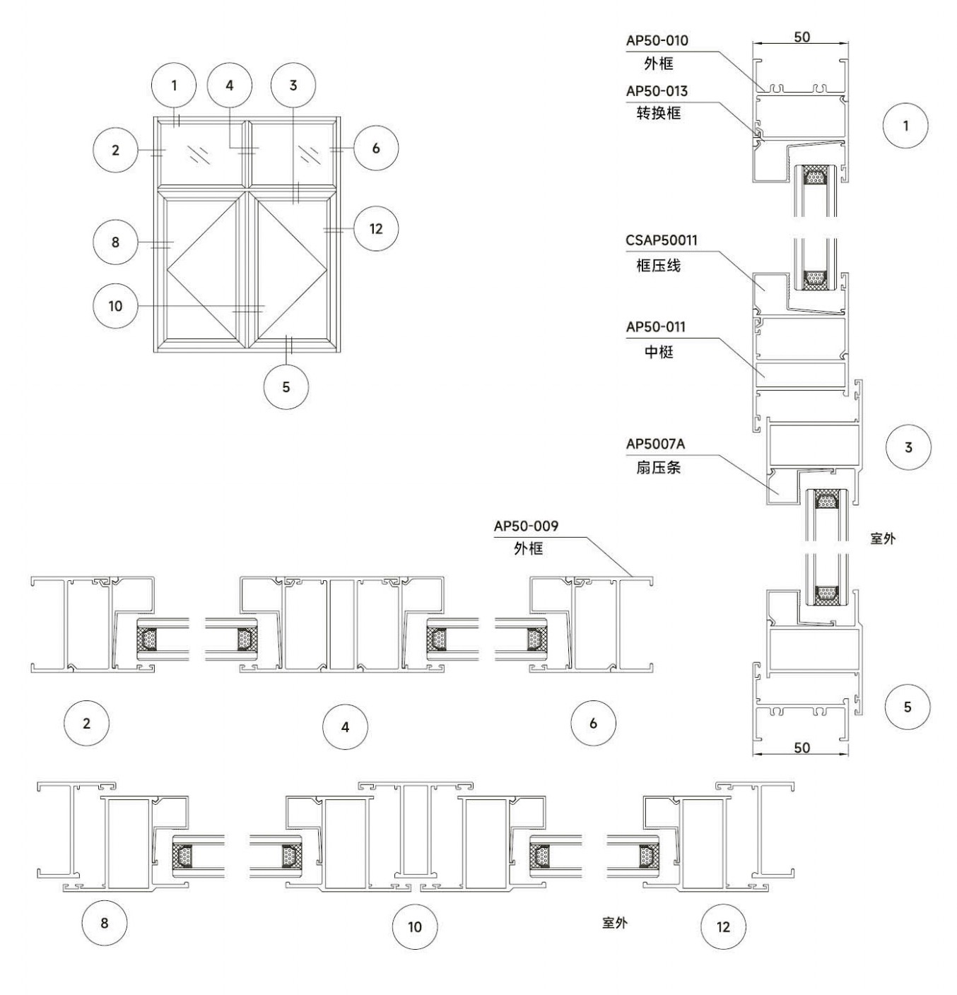
AL50外平开窗
外平开窗采用极窄边框设计,室外框宽仅50-75mm,可以良好的拓展采光视野。其核心性能依托三腔断桥结构实现抗风压9级、隔音40dB、保温K值≤1.8 W/(m²·K)的军工级表现。配置进口重型五金,支持10万次顺畅启闭及150kg防坠安全保障;创新隐藏式排水通道杜绝渗漏,结合可选金刚网窗纱一体设计,完美适配高层建筑、沿海住宅及静音空间,以全能性能定义现代外窗标杆。
全国热线
18169883265
在线咨询
上一个:没有了
下一个:AL70穿胶平开窗
结构图
产品效果图
为您推荐
留缝组合铝单板
墙面无缝铝单板
异形勾搭铝单板
冲孔铝单板
铝网板
金属艺术镂空板
氟碳铝单板
长城铝板
18169883265