安装说明&安装示意图
1、按设计图纸要求测量吊顶铝单板天花安装后的标高,确定出天花水平线,在墙体周边水平线位置固定收边角或定制的铝板;
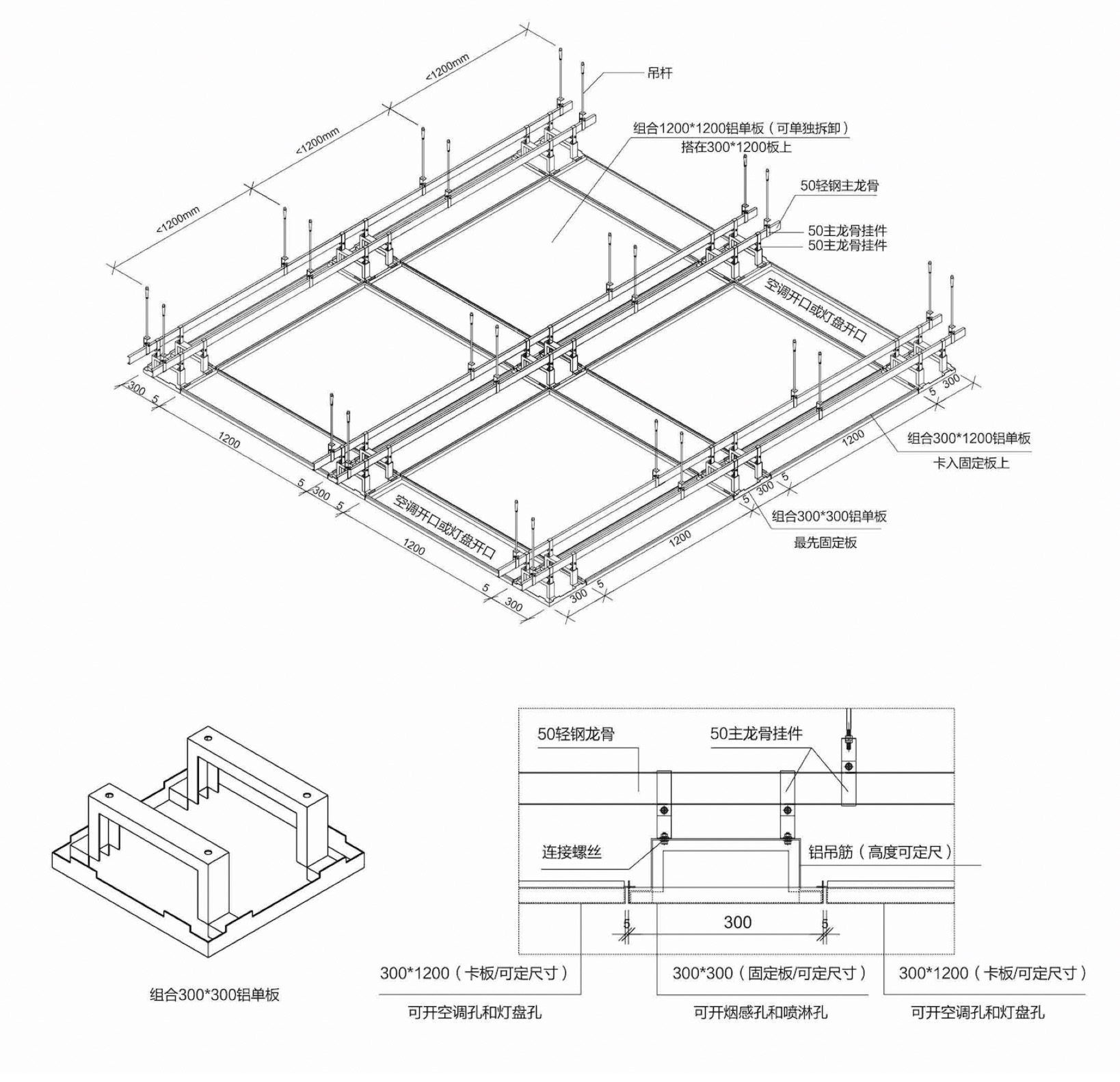
2、确定施工方向,按≤1200mm距离在建筑结构天花上打好吊装孔,用膨胀螺栓固定吊杆;
3、固定轻钢龙骨吊件、轻钢龙骨,将轻钢龙骨调至水平同时调整好轻钢龙骨的标高,每条龙骨相互平行;
4、用轻钢龙骨吊件倒固定在轻钢龙骨上,安装好吊杆;
5、组合300*300铝单板上的吊筋铝条固定在轻钢龙骨吊件上,300*1200铝单板搭(卡)在此固定板上,中间1200*1200铝单板搭放在300*1200板上:
6、收边处应根据现场情况量取尺寸,将天花板搭在收边角上。
7、安装过程应保持手清洁,不能有汗水、油污等不结现象。

产品效果图
