安装说明&安装示意图
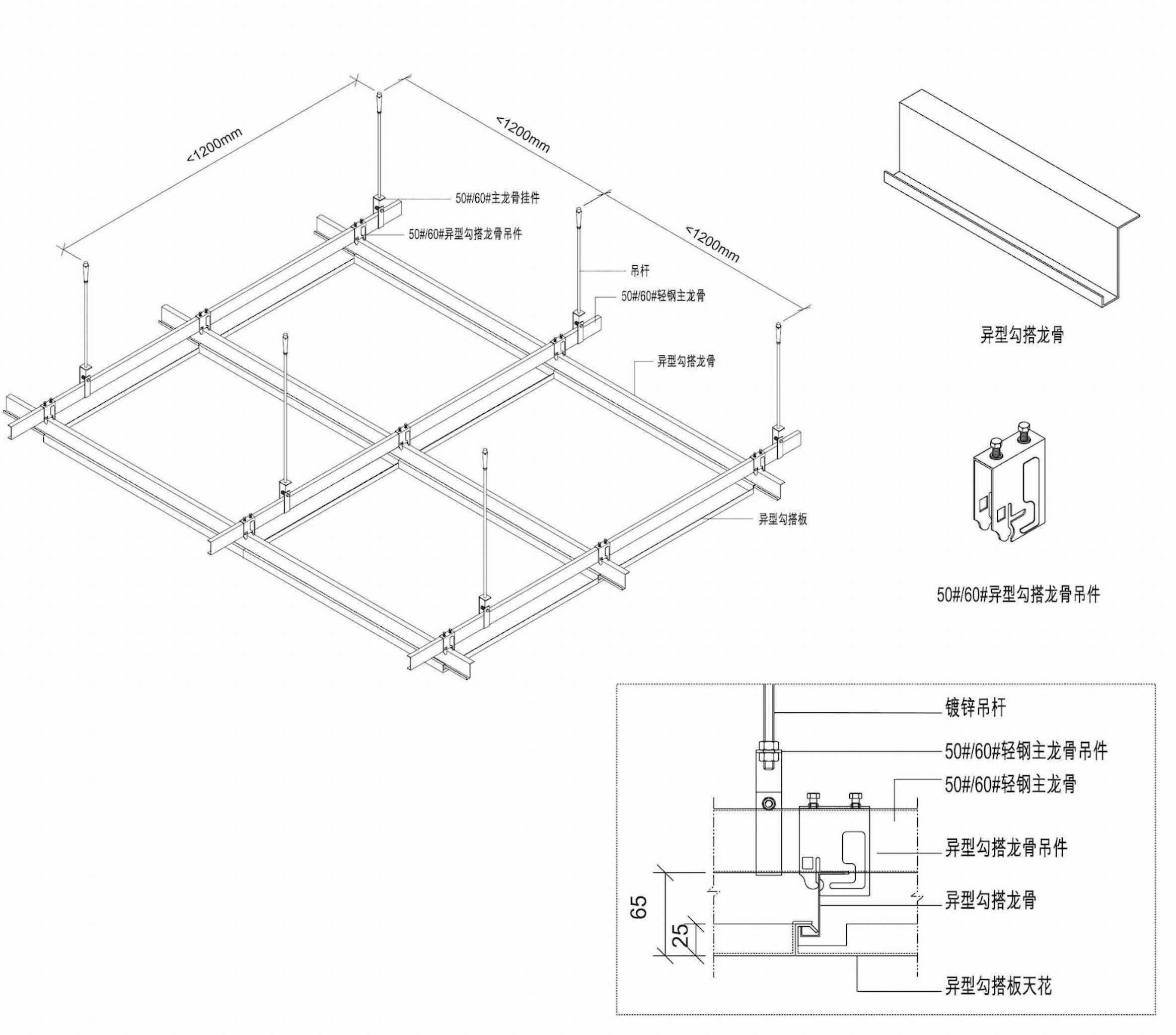
1. 按设计图纸要求测量异型勾搭板天花安装后的标高,确定出天花水平线,在墙体周边水平线位置固定收边角;
2. 确定施工方向,按≤1200mm距离在建筑结构天花上打好吊装孔,用膨胀螺栓固定吊杆;
3. 固定轻钢龙骨吊件、轻钢龙骨,将轻钢龙骨调至水平同时调整好轻钢龙骨的标高,每条龙骨相互平行:
4. 用异型勾搭龙骨吊件将异型勾搭龙骨固定在轻钢龙骨上,调整好水平,拧紧吊件上的螺丝,异型勾搭龙骨必须要彼此平行且垂直于轻钢龙骨;
5.将异型勾搭板按顺序挂在异型勾搭龙骨上即可,注意安装顺序;
6.收边处应根据现场情况量取尺寸,将天花板搭在收边角上:
7.安装过程应保持手清洁,不能有汗水、油污等不良现象。

产品效果图
